久久亚洲中文无码咪咪爱_999久久久九九九祝福语_亚洲AV无码免费成人AV_亚洲综合色视频在线观看

聚研精機 | 關于氣缸體缸孔珩(heng)磨(mo)支承率的保證

來(lai)源(yuan):未(wei)知 / 作者:admin / 發(fa)布日期:2021-10-19 09:21 

聚研精機提供珩磨機、立式珩磨機、數控珩磨機、珩磨桿、鉸珩機、珩鉸機、金剛石工具、燒結金剛石工具、電鍍金剛石工具等。

為(wei)了降低油耗,提(ti)升發動(dong)機性能,新型(xing)發動(dong)機對缸(gang)孔(kong)表面支承率等表面質(zhi)(zhi)量(liang)的要求(qiu)越來越高。為(wei)保(bao)證(zheng)質(zhi)(zhi)量(liang),缸(gang)孔(kong)精(jing)珩(heng)磨(mo)工藝也不斷地改進和(he)提(ti)升,在生產(chan)中通常采(cai)用數控珩(heng)磨(mo)機和(he)金剛(gang)石珩(heng)磨(mo)條的三次珩(heng)(平(ping)頂珩(heng))工藝。支承率是(shi)缸(gang)孔(kong)珩(heng)磨(mo)表面質(zhi)(zhi)量(liang)中最難(nan)以保(bao)證(zheng)的,如何(he)較好地保(bao)證(zheng)支承率,成為(wei)缸(gang)孔(kong)質(zhi)(zhi)量(liang)保(bao)證(zheng)的關鍵,也是(shi)珩(heng)磨(mo)技術研究的重要課題。 

 

支承率的定義

發(fa)動機缸孔表(biao)面質(zhi)量(liang)要(yao)(yao)(yao)求通常(chang)有支(zhi)承率(lv)、粗糙度(du)(R、AR和(he)Rmax)、波紋(wen)度(du)(W)、網紋(wen)角(jiao)和(he)片(pian)狀石墨開口率(lv)等。其中,支(zhi)承率(lv)是比一般粗糙度(du)指標要(yao)(yao)(yao)求更為(wei)(wei)嚴格的表(biao)面質(zhi)量(liang)指標。在我公司,對于支(zhi)承率(lv)指標需要(yao)(yao)(yao)進行能力值CES測定(ding),必須確保CES合格。支(zhi)承率(lv)指標通常(chang)由3項組成:磨合規(gui)(gui)范(fan)CR、運行規(gui)(gui)范(fan)CF和(he)潤滑規(gui)(gui)范(fan)CL。通常(chang),磨合規(gui)(gui)范(fan)CR要(yao)(yao)(yao)求,0≤(Y1%-Y2%)≤0.6μm;運行規(gui)(gui)范(fan)CF 要(yao)(yao)(yao)求,0.5μm≤(Y2%-Y80%)≤1.8μm;潤滑規(gui)(gui)范(fan)CL要(yao)(yao)(yao)求,0.4μm≤(Y80%-Y97%)≤1.4μm。圖1所示為(wei)(wei)支(zhi)承率(lv)指標的組成及測量(liang)位(wei)置。

支承(cheng)率(lv)定義的(de)解釋如下:

1. 粗糙度輪(lun)廓線如圖2所示,支(zhi)(zhi)承長(chang)度Lci;支(zhi)(zhi)承長(chang)度率Tp = 截線支(zhi)(zhi)承長(chang)度之和(he)(∑Lci) / 評(ping)定長(chang)度L。

2.磨(mo)合(he)規范CR要求0≤(Y1%-Y2%)≤0.6μm,即(ji)Tp=1%的截線和Tp=2%的截線距離在0~0.6μm之間。

3. 運(yun)行規范(fan)CF要求0.5μm≤(Y2%-Y80%)≤1.8μm,即Tp=2%的截線和Tp=80%的截線距(ju)離在0.5~1.8μm之間。

4. 潤滑規范CL要求 0.4μm≤(Y80%-Y97%)≤1.4μm,即Tp=80%的截線和Tp=97%的截線距(ju)離在0.4~1.4μm之間。

隨著發動機技術(shu)的發展,新(xin)型發動機對支承(cheng)率各規范(fan)值的控制范(fan)圍更為嚴格。

 

三次珩磨工藝簡介

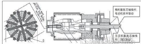
對于前(qian)面舉(ju)例(li)的支承率要求,成熟的工藝為三次珩(heng)(heng)(heng)(heng)(heng)(heng)磨(mo)(mo)(mo),即(ji):粗(cu)珩(heng)(heng)(heng)(heng)(heng)(heng)、精(jing)(jing)珩(heng)(heng)(heng)(heng)(heng)(heng)和平(ping)頂珩(heng)(heng)(heng)(heng)(heng)(heng),用(yong)(yong)三種珩(heng)(heng)(heng)(heng)(heng)(heng)磨(mo)(mo)(mo)條(tiao)分(fen)三次進(jin)行珩(heng)(heng)(heng)(heng)(heng)(heng)磨(mo)(mo)(mo)。具體(ti)方(fang)法為:一個工位為粗(cu)珩(heng)(heng)(heng)(heng)(heng)(heng),用(yong)(yong)于快速的磨(mo)(mo)(mo)削,減少精(jing)(jing)珩(heng)(heng)(heng)(heng)(heng)(heng)余量(liang),保證精(jing)(jing)珩(heng)(heng)(heng)(heng)(heng)(heng)前(qian)的質量(liang);一個工位通(tong)常(chang)為精(jing)(jing)珩(heng)(heng)(heng)(heng)(heng)(heng)和平(ping)頂珩(heng)(heng)(heng)(heng)(heng)(heng),采用(yong)(yong)兩套膨(peng)脹系統,雙膨(peng)脹機構珩(heng)(heng)(heng)(heng)(heng)(heng)磨(mo)(mo)(mo)頭(tou)。珩(heng)(heng)(heng)(heng)(heng)(heng)磨(mo)(mo)(mo)頭(tou)結構如(ru)圖3所示。精(jing)(jing)珩(heng)(heng)(heng)(heng)(heng)(heng)用(yong)(yong)磨(mo)(mo)(mo)料(liao)粒度較(jiao)細的珩(heng)(heng)(heng)(heng)(heng)(heng)磨(mo)(mo)(mo)條(tiao),膨(peng)脹機構為機械式伺(si)服電動機驅動,平(ping)頂珩(heng)(heng)(heng)(heng)(heng)(heng)用(yong)(yong)磨(mo)(mo)(mo)料(liao)粒度更細的珩(heng)(heng)(heng)(heng)(heng)(heng)磨(mo)(mo)(mo)條(tiao),控制珩(heng)(heng)(heng)(heng)(heng)(heng)磨(mo)(mo)(mo)力和時間以保證珩(heng)(heng)(heng)(heng)(heng)(heng)磨(mo)(mo)(mo)質量(liang)。精(jing)(jing)珩(heng)(heng)(heng)(heng)(heng)(heng)和平(ping)頂珩(heng)(heng)(heng)(heng)(heng)(heng)通(tong)常(chang)復(fu)合在同一個珩(heng)(heng)(heng)(heng)(heng)(heng)磨(mo)(mo)(mo)頭(tou)上,能更好地(di)保證珩(heng)(heng)(heng)(heng)(heng)(heng)磨(mo)(mo)(mo)表(biao)面質量(liang),降低設(she)備投資成本。

 

多次珩磨作用的工藝試驗及探討

由于(yu)支承率的要(yao)求并不是特別高(gao),為降低(di)成本,我們進行了(le)工藝優化(hua)實驗,嘗試用(yong)二次珩(heng)(heng)磨取代三次精(jing)珩(heng)(heng),看工件表面質量(liang)是否能達到設計要(yao)求。

1.金(jin)剛(gang)石珩磨(mo)條精珩試驗

試(shi)驗方案:粗、精珩都采用金剛石珩磨條,計劃通過(guo)優(you)化精珩磨條(金剛石粒度、粘合(he)劑配方等)和加工參數達到珩磨質量要(yao)求(qiu)。

(1)優選珩(heng)磨(mo)(mo)條金(jin)剛(gang)石粒(li)(li)度。初選D40、D45和D50粒(li)(li)度的珩(heng)磨(mo)(mo)條進(jin)行(xing)試(shi)驗發(fa)現,D40珩(heng)磨(mo)(mo)條金(jin)剛(gang)石粒(li)(li)度偏細,珩(heng)磨(mo)(mo)后(hou)(hou)潤滑(hua)規范超(chao)下差(cha);D50珩(heng)磨(mo)(mo)條金(jin)剛(gang)石粒(li)(li)度偏粗,珩(heng)磨(mo)(mo)后(hou)(hou)運行(xing)規范超(chao)上差(cha),除支承率外,其(qi)余表面質量項目都合格。于(yu)是,我們決(jue)定采(cai)用D45粒(li)(li)度的金(jin)剛(gang)石珩(heng)磨(mo)(mo)條進(jin)行(xing)優化(hua)試(shi)驗。

(2)D45珩(heng)磨條配(pei)方(fang)的優(you)(you)化(hua)。采用D45粒(li)度(du),選(xuan)用不(bu)(bu)(bu)同粘合劑和(he)硬(ying)度(du)的5種組合進行(xing)優(you)(you)化(hua)試(shi)驗(yan),希(xi)望能得到(dao)既保證質量(liang)又(you)保證磨削(xue)效率(lv)的珩(heng)磨條。但(dan)試(shi)驗(yan)的實(shi)(shi)際效果(guo)并不(bu)(bu)(bu)理(li)想(xiang)(xiang),要么與(yu)D40的珩(heng)磨效果(guo)一(yi)(yi)樣,潤滑規(gui)范不(bu)(bu)(bu)合格;要么與(yu)D50的珩(heng)磨效果(guo)一(yi)(yi)樣,運行(xing)規(gui)范不(bu)(bu)(bu)合格,很難(nan)穩定地達到(dao)想(xiang)(xiang)要的中間效果(guo)。調整加(jia)工參(can)數后,效果(guo)改善十(shi)分有限。實(shi)(shi)踐證明,一(yi)(yi)次精珩(heng)要兼顧標準規(gui)定的運行(xing)規(gui)范和(he)潤滑規(gui)范實(shi)(shi)在太困(kun)難(nan),因此只好放棄D45珩(heng)磨條優(you)(you)化(hua)試(shi)驗(yan)。

(3)珩(heng)(heng)(heng)(heng)磨(mo)(mo)(mo)(mo)參數(shu)優化(hua)試驗。采用D50珩(heng)(heng)(heng)(heng)磨(mo)(mo)(mo)(mo)條(tiao)(tiao),通過(guo)調整膨脹力和速度得到(dao)的支(zhi)承(cheng)(cheng)率值(zhi)變化(hua)較小;大(da)(da)(da)幅更(geng)(geng)改延(yan)時(shi)(shi)參數(shu)(精珩(heng)(heng)(heng)(heng)磨(mo)(mo)(mo)(mo)到(dao)尺寸后停止膨脹、繼續(xu)珩(heng)(heng)(heng)(heng)磨(mo)(mo)(mo)(mo)的時(shi)(shi)間),由300sm加(jia)大(da)(da)(da)到(dao)3s,運(yun)行(xing)(xing)規(gui)范(fan)有較大(da)(da)(da)改進(jin)。但因(yin)運(yun)行(xing)(xing)規(gui)范(fan)結(jie)果(guo)本來比較大(da)(da)(da),在延(yan)時(shi)(shi)修(xiu)磨(mo)(mo)(mo)(mo)過(guo)程中,珩(heng)(heng)(heng)(heng)磨(mo)(mo)(mo)(mo)條(tiao)(tiao)對缸孔(kong)壁珩(heng)(heng)(heng)(heng)磨(mo)(mo)(mo)(mo)壓(ya)力的變化(hua)較大(da)(da)(da),造成(cheng)珩(heng)(heng)(heng)(heng)磨(mo)(mo)(mo)(mo)條(tiao)(tiao)修(xiu)磨(mo)(mo)(mo)(mo)高點(平(ping)(ping)頂)的效果(guo)不(bu)穩定,散差(cha)較大(da)(da)(da),效果(guo)時(shi)(shi)好(hao)時(shi)(shi)壞(huai),存在超(chao)差(cha)情況,難(nan)以(yi)保(bao)證零件全部合格。在具備三次珩(heng)(heng)(heng)(heng)功能的珩(heng)(heng)(heng)(heng)磨(mo)(mo)(mo)(mo)機上,用第二次的珩(heng)(heng)(heng)(heng)磨(mo)(mo)(mo)(mo)條(tiao)(tiao)(精珩(heng)(heng)(heng)(heng)磨(mo)(mo)(mo)(mo)條(tiao)(tiao))進(jin)行(xing)(xing)第三次珩(heng)(heng)(heng)(heng)磨(mo)(mo)(mo)(mo)(平(ping)(ping)頂珩(heng)(heng)(heng)(heng)),達到(dao)了規(gui)范(fan)要求的支(zhi)承(cheng)(cheng)率,但運(yun)行(xing)(xing)規(gui)范(fan)CF值(zhi)偏大(da)(da)(da)。但當(dang)支(zhi)承(cheng)(cheng)率值(zhi)要求更(geng)(geng)嚴格時(shi)(shi),該方法就(jiu)難(nan)以(yi)保(bao)證了,必(bi)須用更(geng)(geng)細粒度的平(ping)(ping)頂珩(heng)(heng)(heng)(heng)珩(heng)(heng)(heng)(heng)磨(mo)(mo)(mo)(mo)條(tiao)(tiao)。

2.珩磨次(ci)數的作用及其對質量的影響

通過以上試驗,可(ke)以得出二次(ci)(ci)珩(heng)(heng)磨(mo)(粗、精珩(heng)(heng))和三次(ci)(ci)精珩(heng)(heng)磨(mo)表面(mian)質量差異很大,需(xu)根據產品對支承率的(de)要求進行選擇。珩(heng)(heng)磨(mo)次(ci)(ci)數(shu)對于(yu)珩(heng)(heng)磨(mo)工藝的(de)設計是一個關鍵參數(shu),為(wei)保(bao)證質量和效率,適當的(de)多次(ci)(ci)珩(heng)(heng)磨(mo)是必(bi)須的(de)。

一次珩(heng)(heng)(heng)(粗(cu)(cu)珩(heng)(heng)(heng))是(shi)不(bu)可少的(de)(de),粗(cu)(cu)珩(heng)(heng)(heng)磨料粒度粗(cu)(cu)且效(xiao)率高(gao),主(zhu)要用于高(gao)效(xiao)磨除(chu)大(da)部分珩(heng)(heng)(heng)磨余(yu)量(liang)(liang),消除(chu)精(jing)(jing)(jing)鏜尺寸及形狀(zhuang)誤差(cha)對精(jing)(jing)(jing)珩(heng)(heng)(heng)的(de)(de)影響,為(wei)(wei)精(jing)(jing)(jing)珩(heng)(heng)(heng)作準備,保證(zheng)為(wei)(wei)精(jing)(jing)(jing)珩(heng)(heng)(heng)提(ti)供穩(wen)定(ding)(ding)的(de)(de)、均勻的(de)(de)加工余(yu)量(liang)(liang);修整圓度、圓柱度,使(shi)精(jing)(jing)(jing)珩(heng)(heng)(heng)質量(liang)(liang)和節拍穩(wen)定(ding)(ding),提(ti)高(gao)珩(heng)(heng)(heng)磨效(xiao)率。精(jing)(jing)(jing)珩(heng)(heng)(heng)余(yu)量(liang)(liang)通常(chang)在0.015mm以上(shang)(直徑)。精(jing)(jing)(jing)珩(heng)(heng)(heng)余(yu)量(liang)(liang)過小,會出現殘(can)留粗(cu)(cu)珩(heng)(heng)(heng)痕跡(ji),質量(liang)(liang)不(bu)穩(wen)定(ding)(ding);余(yu)量(liang)(liang)過大(da),加工時間(jian)長(chang),影響節拍。

二次珩(精(jing)(jing)珩)分(fen)兩組(zu)參(can)數(shu)加(jia)工,第(di)一組(zu)參(can)數(shu)適用于(yu)半(ban)精(jing)(jing)珩,較高(gao)膨脹(zhang)速(su)度(du)(du)磨削,提(ti)高(gao)圓(yuan)度(du)(du)、圓(yuan)柱度(du)(du)質(zhi)量(liang)(liang),給第(di)二組(zu)參(can)數(shu)精(jing)(jing)珩提(ti)供更均勻、穩定的珩磨余(yu)量(liang)(liang)。第(di)二組(zu)參(can)數(shu)適用于(yu)精(jing)(jing)珩,是(shi)保證珩磨質(zhi)量(liang)(liang)的關鍵。當二次珩能(neng)達到質(zhi)量(liang)(liang)要求時(shi),就(jiu)沒有(you)必(bi)要再進(jin)行三次珩;如果二次珩(精(jing)(jing)珩)不能(neng)穩定得達到表面質(zhi)量(liang)(liang)要求,就(jiu)必(bi)須進(jin)行三次珩。

三次珩(heng)(平頂(ding)珩(heng)),珩(heng)磨條磨料粒(li)度更(geng)細,屬(shu)于微量加工,主要改善表(biao)面質量,對尺寸影響甚微,可以(yi)忽略不計(ji)。通常控(kong)制珩(heng)磨力、珩(heng)磨時間或珩(heng)磨次數等參數來進行加工。第三次珩(heng)磨不能過(guo)度,只需起到(dao)修平頂(ding)的作用,否(fou)則就失(shi)去了三次珩(heng)的意義,反而(er)會造成支承率值的不穩定。

只(zhi)要選擇好(hao)珩(heng)(heng)(heng)磨(mo)條(tiao),并(bing)控(kong)制好(hao)珩(heng)(heng)(heng)磨(mo)參(can)數,三次珩(heng)(heng)(heng)就能達到(dao)珩(heng)(heng)(heng)磨(mo)質(zhi)(zhi)量要求(qiu)。目前缸孔的表面質(zhi)(zhi)量要求(qiu),采用 4次珩(heng)(heng)(heng)的必(bi)要性不大。

 

珩磨表面支承率形成機理的探討

通過珩磨(mo)試(shi)驗和(he)工藝參(can)數調整的試(shi)驗,研究珩磨(mo)支承率(lv)的磨(mo)合規(gui)范、運行規(gui)范和(he)潤滑規(gui)范的加工形成機理,來探討其質量保(bao)證方法(fa)。

1.潤滑規范CL

潤滑規范CL要求0.4μm≤(Y80%-Y97%)≤1.4μm,是控制(zhi)珩(heng)磨(mo)(mo)紋溝槽底(di)部(bu)支(zhi)承率(lv)的參數,主要由二次珩(heng)的精(jing)珩(heng)珩(heng)磨(mo)(mo)條(tiao)磨(mo)(mo)粒切削形成。精(jing)珩(heng)珩(heng)磨(mo)(mo)條(tiao)磨(mo)(mo)料的粒度、配方對其影(ying)響最大,零件的材質、加工參數對其也有一定的影(ying)響,但相(xiang)對較小。

如果粗(cu)珩(heng)(heng)(heng)給精(jing)(jing)(jing)珩(heng)(heng)(heng)留的(de)(de)(de)(de)余量較小或粗(cu)珩(heng)(heng)(heng)的(de)(de)(de)(de)形狀誤(wu)差很(hen)大,導致粗(cu)珩(heng)(heng)(heng)的(de)(de)(de)(de)溝槽殘留在成品表(biao)(biao)面(mian)(mian),那么粗(cu)珩(heng)(heng)(heng)就(jiu)會影響到(dao)CL的(de)(de)(de)(de)結果,造成表(biao)(biao)面(mian)(mian)質量的(de)(de)(de)(de)不穩定或不均勻。正常(chang)情況下,粗(cu)珩(heng)(heng)(heng)的(de)(de)(de)(de)作用就(jiu)是修(xiu)整形狀誤(wu)差,給精(jing)(jing)(jing)珩(heng)(heng)(heng)做準備,留合(he)適的(de)(de)(de)(de)、足(zu)夠的(de)(de)(de)(de)精(jing)(jing)(jing)珩(heng)(heng)(heng)余量,以(yi)不影響精(jing)(jing)(jing)珩(heng)(heng)(heng)節拍和表(biao)(biao)面(mian)(mian)質量為目標。

2.運行規范CF

運(yun)(yun)行(xing)(xing)規(gui)范(fan)CF要(yao)求0.5μm≤(Y2%-Y80%)≤1.8μm,是由二(er)次(ci)珩(heng)和三次(ci)珩(heng)(平(ping)頂(ding)珩(heng))共同來(lai)保證(zheng)的。如果僅由二(er)次(ci)珩(heng)保證(zheng),就如同前(qian)面(mian)進行(xing)(xing)的珩(heng)磨試(shi)驗,保證(zheng)質(zhi)量很(hen)困難,難以兼顧潤(run)滑規(gui)范(fan)要(yao)求。在研究(jiu)過(guo)程中(zhong),對(dui)幾個運(yun)(yun)行(xing)(xing)規(gui)范(fan)CF達到(dao)2~2.5μm的超差零件,進行(xing)(xing)了改善試(shi)驗:用(yong)30um拋光帶輕(qing)(qing)輕(qing)(qing)皴零件表面(mian),相當于平(ping)頂(ding)珩(heng),略修平(ping)高點,然后進行(xing)(xing)測量,運(yun)(yun)行(xing)(xing)規(gui)范(fan)CF達到(dao)0.7um,潤(run)滑規(gui)范(fan)CL沒(mei)有(you)變化,說明二(er)次(ci)珩(heng)和三次(ci)珩(heng)(平(ping)頂(ding)珩(heng))的有(you)效結合是保證(zheng)運(yun)(yun)行(xing)(xing)規(gui)范(fan)CF的關鍵。

3.磨合規范CR

磨(mo)合規(gui)(gui)范(fan)CR 要求(qiu)0≤(Y1%-Y2%)≤0.6μm,是要求(qiu)珩磨(mo)面沒有較高的(de)凸起。磨(mo)合規(gui)(gui)范(fan)CR與珩磨(mo)條的(de)粒(li)(li)度關系很(hen)大,只要磨(mo)料(liao)粒(li)(li)度小于D50,基本能保(bao)證磨(mo)合規(gui)(gui)范(fan)。當然(ran),磨(mo)合規(gui)(gui)范(fan)的(de)值(zhi)越(yue)小,要求(qiu)磨(mo)料(liao)的(de)粒(li)(li)度就越(yue)小。

 

珩磨條對珩磨質量、效率的影響

試驗研究(jiu)表(biao)明,珩磨(mo)(mo)條(tiao)對珩磨(mo)(mo)的(de)質(zhi)量、效率和壽命的(de)影響都非常大。珩磨(mo)(mo)條(tiao)的(de)配方是(shi)保(bao)證珩磨(mo)(mo)表(biao)面(mian)質(zhi)量的(de)關鍵。

磨(mo)料粒(li)(li)度(du)對(dui)珩(heng)磨(mo)表面質(zhi)量影響最(zui)為顯著(zhu),對(dui)支(zhi)承率,粗糙度(du)R、AR和(he)Rmax以(yi)及波紋度(du)W、石墨(mo)開(kai)口率都有(you)影響。粒(li)(li)度(du)大(da)的加工(gong)表面粗糙,但效率高,可用(yong)于粗珩(heng);粒(li)(li)度(du)小(xiao)則反之。對(dui)于粗珩(heng)、精珩(heng)和(he)平(ping)頂珩(heng)采(cai)用(yong)不同(tong)的、合適的磨(mo)料粒(li)(li)度(du),合適的切削參數(shu),以(yi)保證質(zhi)量和(he)效率,可以(yi)通過試驗加以(yi)優選。

硬(ying)(ying)度是由粘(zhan)合劑(ji)配(pei)方(fang)保證(zheng)的(de)(de),金(jin)剛石珩磨條通過調(diao)整(zheng)燒結的(de)(de)金(jin)屬粘(zhan)合劑(ji)的(de)(de)金(jin)屬成分、配(pei)比來(lai)調(diao)整(zheng)硬(ying)(ying)度,由珩磨條生產廠家(jia)根據珩磨試驗結果來(lai)加(jia)(jia)以調(diao)整(zheng)。硬(ying)(ying)度影響脫(tuo)粒的(de)(de)快慢,對(dui)珩磨的(de)(de)影響僅(jin)次于粒度。硬(ying)(ying)度高,脫(tuo)粒慢且壽(shou)命(ming)長(chang),但磨鈍的(de)(de)鋒(feng)刃多,加(jia)(jia)工(gong)效率(lv)降低(di)(di),支(zhi)承率(lv)值小;硬(ying)(ying)度低(di)(di)則(ze)反之(zhi)。

濃度是(shi)磨(mo)料(liao)和粘合(he)劑的比例,對粗(cu)糙(cao)度AR、波紋度W及珩(heng)磨(mo)條(tiao)壽命的影響很大(da),對效率等其(qi)他(ta)方面也(ye)有一定的影響,是(shi)珩(heng)磨(mo)條(tiao)配方的一個重要參(can)數。

 

珩磨參數的作用

珩(heng)磨(mo)(mo)試驗研究和三(san)次珩(heng)珩(heng)磨(mo)(mo)工(gong)藝的實踐證(zheng)明,珩(heng)磨(mo)(mo)參數(shu)對表面質量(liang)和效率(lv)有著很大的影響(xiang),其(qi)作用僅次于(yu)珩(heng)磨(mo)(mo)條。在確定珩(heng)磨(mo)(mo)次數(shu)和珩(heng)磨(mo)(mo)條后,珩(heng)磨(mo)(mo)參數(shu)的優(you)化(hua)就是保(bao)證(zheng)珩(heng)磨(mo)(mo)表面質量(liang)的關(guan)鍵。

1.余量分配

精(jing)珩(heng)(heng)磨(mo)(mo)余(yu)量(liang)(liang)(liang)分配影響質量(liang)(liang)(liang)和(he)效率。精(jing)珩(heng)(heng)磨(mo)(mo)余(yu)量(liang)(liang)(liang)太小,前一工步有(you)(you)殘留影響造成質量(liang)(liang)(liang)不(bu)穩(wen)或不(bu)合(he)格,通常需(xu)要保(bao)證精(jing)珩(heng)(heng)磨(mo)(mo)余(yu)量(liang)(liang)(liang)大(da)于(yu)0.012mm。在(zai)參(can)數(shu)設定時,設定余(yu)量(liang)(liang)(liang)大(da)于(yu)0.012mm,當低(di)于(yu)設定值(zhi)時設備出現報警,防止余(yu)量(liang)(liang)(liang)過小造成質量(liang)(liang)(liang)不(bu)合(he)格。精(jing)珩(heng)(heng)第一組參(can)數(shu)給(gei)第二組參(can)數(shu)珩(heng)(heng)磨(mo)(mo)留的余(yu)量(liang)(liang)(liang)不(bu)能低(di)于(yu)0.005mm,特別(bie)是(shi)在(zai)缸孔(kong)珩(heng)(heng)磨(mo)(mo)存在(zai)一定量(liang)(liang)(liang)變形時,第二組參(can)數(shu)珩(heng)(heng)磨(mo)(mo)必須有(you)(you)均(jun)勻(yun)的、足夠量(liang)(liang)(liang)的珩(heng)(heng)磨(mo)(mo)余(yu)量(liang)(liang)(liang),否則有(you)(you)可(ke)能出現局部的網紋混亂和(he)質量(liang)(liang)(liang)不(bu)均(jun)勻(yun)情況(kuang)。綜上可(ke)以得出如下結論:

(1)粗珩(heng)必(bi)須保證(zheng)缸孔的圓(yuan)柱度(du),不(bu)能有過(guo)大(da)的錐度(du),避免精珩(heng)時因錐度(du)造(zao)成余量不(bu)均勻,上下(xia)部分(fen)的支(zhi)承(cheng)率(lv)差(cha)異大(da),且表面質量不(bu)穩定(ding)。

(2)珩磨(mo)頭本(ben)身的(de)圓柱度(du)非常重要,在設置珩磨(mo)參數時要關注珩磨(mo)頭必須均勻磨(mo)損,否則就會產生圓柱度(du)和支(zhi)承率質量(liang)問題(ti)。

(3)精珩(heng)(heng)磨余量過大(da),珩(heng)(heng)磨時間(jian)長且效(xiao)率(lv)低,會影響(xiang)產(chan)能。

2.膨脹速度

膨(peng)脹速(su)(su)度(du)(du)是調整(zheng)支(zhi)承率值(zhi)的(de)主要珩磨(mo)參數。膨(peng)脹速(su)(su)度(du)(du)高(gao),珩磨(mo)效(xiao)率高(gao),但粗(cu)糙度(du)(du)值(zhi)變大(da)(da),支(zhi)承率CL、CF和CR值(zhi)變大(da)(da),珩磨(mo)力(li)變大(da)(da);速(su)(su)度(du)(du)低(di)則(ze)反之(zhi)。膨(peng)脹速(su)(su)度(du)(du)不能(neng)過(guo)大(da)(da),過(guo)大(da)(da)有(you)可能(neng)使珩磨(mo)力(li)快速(su)(su)提高(gao)而設備不能(neng)及時反饋,出現(xian)珩磨(mo)頭卡死(si),主軸不能(neng)轉(zhuan)動。

3.珩磨(mo)力(li)

珩(heng)(heng)(heng)磨(mo)(mo)(mo)力(li)(li)是(shi)限制(zhi)膨(peng)(peng)脹(zhang)(zhang)的(de)參數,當(dang)達到(dao)設定(ding)的(de)珩(heng)(heng)(heng)磨(mo)(mo)(mo)力(li)(li),膨(peng)(peng)脹(zhang)(zhang)停(ting)止,直(zhi)到(dao)珩(heng)(heng)(heng)磨(mo)(mo)(mo)力(li)(li)降(jiang)到(dao)設定(ding)的(de)最低(di)(di)珩(heng)(heng)(heng)磨(mo)(mo)(mo)力(li)(li),珩(heng)(heng)(heng)磨(mo)(mo)(mo)頭才開(kai)始繼續膨(peng)(peng)脹(zhang)(zhang)。珩(heng)(heng)(heng)磨(mo)(mo)(mo)力(li)(li)大(da),珩(heng)(heng)(heng)磨(mo)(mo)(mo)效率(lv)高、粗糙度(du)(du)值(zhi)變(bian)大(da),支承(cheng)率(lv)徝(zhi)CL、CF和CR變(bian)大(da);珩(heng)(heng)(heng)磨(mo)(mo)(mo)力(li)(li)過(guo)(guo)大(da),會造成零件珩(heng)(heng)(heng)磨(mo)(mo)(mo)變(bian)形加大(da),圓度(du)(du)、圓柱(zhu)度(du)(du)差,并影響石墨開(kai)口(kou)率(lv)降(jiang)低(di)(di);珩(heng)(heng)(heng)磨(mo)(mo)(mo)力(li)(li)低(di)(di)則反(fan)之。在(zai)生產中要關注(zhu)整個加工過(guo)(guo)程中實際珩(heng)(heng)(heng)磨(mo)(mo)(mo)力(li)(li)的(de)變(bian)化,如果珩(heng)(heng)(heng)磨(mo)(mo)(mo)過(guo)(guo)程中珩(heng)(heng)(heng)磨(mo)(mo)(mo)力(li)(li)很低(di)(di),沒有(you)達到(dao)設定(ding)的(de)珩(heng)(heng)(heng)磨(mo)(mo)(mo)力(li)(li),此時為提(ti)高支承(cheng)率(lv)值(zhi)而(er)提(ti)高珩(heng)(heng)(heng)磨(mo)(mo)(mo)力(li)(li)就(jiu)失去了意義。

對于第(di)(di)(di)三次(ci)珩(heng)(heng)磨(mo)(mo)(mo)(平(ping)頂珩(heng)(heng)),通(tong)常采用粒度很細的珩(heng)(heng)磨(mo)(mo)(mo)條,珩(heng)(heng)磨(mo)(mo)(mo)力越(yue)(yue)大(da),珩(heng)(heng)磨(mo)(mo)(mo)時間越(yue)(yue)長,第(di)(di)(di)三次(ci)珩(heng)(heng)磨(mo)(mo)(mo)效果越(yue)(yue)凸出,支承率徝CF、CR變小,粗(cu)糙度R變小。特別要注(zhu)意(yi)第(di)(di)(di)三次(ci)珩(heng)(heng)磨(mo)(mo)(mo)珩(heng)(heng)磨(mo)(mo)(mo)力和(he)珩(heng)(heng)磨(mo)(mo)(mo)時間不允許過大(da),不能通(tong)過第(di)(di)(di)三次(ci)來降(jiang)低(di)CL 和(he)AR,否則會造(zao)成質量(liang)(liang)的不穩定(ding)。CL 和(he)AR必(bi)須由(you)第(di)(di)(di)二次(ci)珩(heng)(heng)磨(mo)(mo)(mo)來保證,珩(heng)(heng)磨(mo)(mo)(mo)質量(liang)(liang)才能穩定(ding)。

4.延時時間

延時(shi)(shi)時(shi)(shi)間(jian)是珩(heng)(heng)磨到尺寸后(hou)膨脹(zhang)系(xi)統停止膨脹(zhang),珩(heng)(heng)磨繼(ji)續進行光整(zheng)加工(gong)的時(shi)(shi)間(jian)。延時(shi)(shi)時(shi)(shi)間(jian)長(chang),光整(zheng)加工(gong)時(shi)(shi)間(jian)加長(chang),支承(cheng)率有(you)微量改(gai)變(bian),CF、CR減(jian)小;延時(shi)(shi)時(shi)(shi)間(jian)短則反之。

5.主軸轉速和往復速度

速度高(gao)、效率高(gao),是提高(gao)效率的重要手段,對粗(cu)糙(cao)(cao)度也有影(ying)響,受設(she)備和網紋角限制不(bu)能過高(gao),所(suo)以精珩時基本固定不(bu)變,不(bu)能用來作為支承率和粗(cu)糙(cao)(cao)度的調整參數。

 

結語

珩(heng)(heng)磨次(ci)數、珩(heng)(heng)磨條(tiao)和珩(heng)(heng)磨參數是保(bao)證珩(heng)(heng)磨表面質量的(de)(de)3個不同層次(ci)的(de)(de)關鍵因(yin)素,對支(zhi)承率的(de)(de)保(bao)證起決定性(xing)作用。

珩(heng)(heng)(heng)磨(mo)(mo)(mo)(mo)(mo)次(ci)數(shu)(shu)最為重要,是珩(heng)(heng)(heng)磨(mo)(mo)(mo)(mo)(mo)質(zhi)量(liang)(liang)、效率和成(cheng)本的(de)(de)保證,是珩(heng)(heng)(heng)磨(mo)(mo)(mo)(mo)(mo)工藝(yi)需要根據產品要求確定(ding)(ding)的(de)(de)首要參(can)(can)(can)數(shu)(shu)。珩(heng)(heng)(heng)磨(mo)(mo)(mo)(mo)(mo)條是僅次(ci)于珩(heng)(heng)(heng)磨(mo)(mo)(mo)(mo)(mo)次(ci)數(shu)(shu)的(de)(de)重要因(yin)素,它會嚴(yan)重影響珩(heng)(heng)(heng)磨(mo)(mo)(mo)(mo)(mo)質(zhi)量(liang)(liang)、效率和成(cheng)本。珩(heng)(heng)(heng)磨(mo)(mo)(mo)(mo)(mo)參(can)(can)(can)數(shu)(shu)是較低(di)層次(ci)的(de)(de)重要因(yin)素,當(dang)珩(heng)(heng)(heng)磨(mo)(mo)(mo)(mo)(mo)次(ci)數(shu)(shu)、珩(heng)(heng)(heng)磨(mo)(mo)(mo)(mo)(mo)條選擇正確時,珩(heng)(heng)(heng)磨(mo)(mo)(mo)(mo)(mo)參(can)(can)(can)數(shu)(shu)對質(zhi)量(liang)(liang)起決(jue)定(ding)(ding)作用。在工藝(yi)設計和調試時,我(wo)們(men)首先確定(ding)(ding)珩(heng)(heng)(heng)磨(mo)(mo)(mo)(mo)(mo)次(ci)數(shu)(shu),再確定(ding)(ding)珩(heng)(heng)(heng)磨(mo)(mo)(mo)(mo)(mo)條,最后是優化(hua)參(can)(can)(can)數(shu)(shu)。在日常解(jie)決(jue)支(zhi)承率質(zhi)量(liang)(liang)問題時,我(wo)們(men)要首先優化(hua)珩(heng)(heng)(heng)磨(mo)(mo)(mo)(mo)(mo)參(can)(can)(can)數(shu)(shu),當(dang)難(nan)以解(jie)決(jue)問題時再考慮優化(hua)珩(heng)(heng)(heng)磨(mo)(mo)(mo)(mo)(mo)條。

 

聚研精機視頻號開通啦

 
 
 
期待您的關注!


 

全(quan)球據點

重慶總部
研發中心:重慶市科學技術研究院
制造基地:鄰水城南工業園二區渝鄰大道100號
聯(lian)系電話:023-60308386                 +86-17723160057

版權所有: 聚研精機(重慶)智能裝備有限公司 備案號:
關鍵字:珩(heng)磨(mo)(mo)機(ji)|立(li)式珩(heng)磨(mo)(mo)機(ji)|數控珩(heng)磨(mo)(mo)機(ji)|鉸珩(heng)機(ji)|珩(heng)鉸機(ji)|單沖程珩(heng)磨(mo)(mo)機(ji)|珩(heng)磨(mo)(mo)頭|珩(heng)磨(mo)(mo)桿|珩(heng)磨(mo)(mo)工裝|珩(heng)磨(mo)(mo)工具|珩(heng)磨(mo)(mo)自動化(hua)